安邦生技辦公室

空間屬性 - 辦公空間
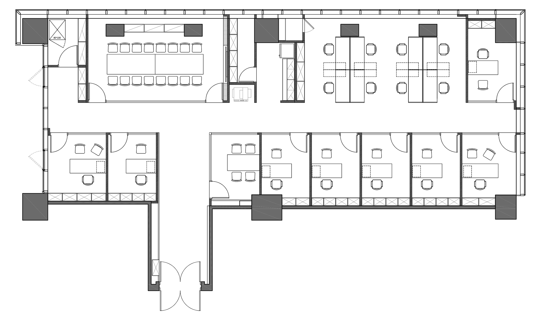
室內面積 - 108坪
主要建材 - 塗裝木皮、方塊地毯、鋁框玻璃隔間





  • 安邦生技辦公室
  • 安邦生技辦公室
  • 安邦生技辦公室
  • 安邦生技辦公室
  • 安邦生技辦公室
  • 安邦生技辦公室
  • 安邦生技辦公室
  • 安邦生技辦公室
  • 安邦生技辦公室
  • 安邦生技辦公室
  • 安邦生技辦公室